養護老人ホームときわ寮
施設紹介
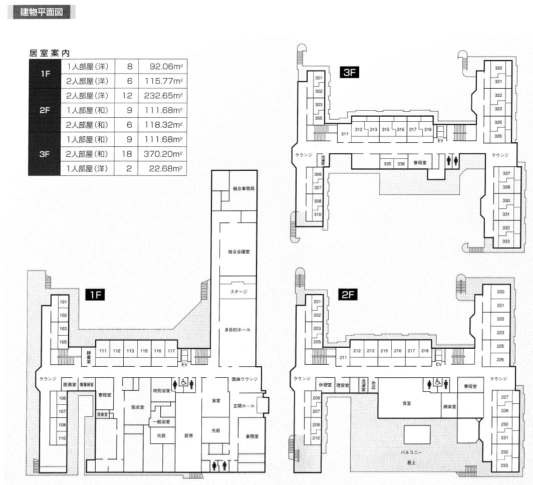
養護老人ホーム 110床
短期入所生活介護(ショートステイ) 2床
施 設 概 要
和歌山県の中紀に位置し、JR御坊駅よりバス(日ノ岬パーク行き)自衛隊前で下車徒歩1分。 県立自然公園煙樹海岸内にあり、南は紺碧の海太平洋と、延々と続く美しい煙樹ヶ浜が開け、 年中緑の松に包まれ、四季を通じて小鳥の声が聞こえる素晴らしい環境にあります。
※平成18年7月1日付けで介護保険法の適用施設となりました。 それにより、入所されている要介護者の方に対し、ケアプランに基づき、 より質の高い個別サービスが出来るよう全力で取り組んでいます。
当施設のご利用、ご見学等に関するお問い合わせにつきましては、下記の連絡先までどうぞお気軽にご連絡ください。
〒644−0044
和歌山県日高郡美浜町大字和田1138番地の180
TEL: 0738−22−0783
FAX: 0738−24−0292
E-MAIL:tokiwayo@wonder.ocn.ne.jp
| 主要設備 | |
|---|---|
| 居室(2人部屋) | 42室 |
| 個室(1人部屋) | 28室(ショートステイ室を含む) |
| 静養室 | 1室 |
| 食堂 | 2室 (1階・2階) |
| 1階多目的ホール(機能訓練) ※主な設置機器 | 1室 滑車運動器、平行棒 |
| 浴室 | 2室(一般浴室・特殊浴室) |
| 医務室 | 1室 |
| 人員配置 | |
|---|---|
| 施設長 | 1名 |
| 医師 | 1名(非常勤) |
| 看護職員 | 3名(夜間は待機) |
| 生活相談員 | 4名 |
| 栄養士 | 1名 |
| 介護職員 | 14名 |
| 調理員 | 6名 |
| 事務員 | 2名 |




