特別養護老人ホームときわ寮
施設紹介
介護老人福祉施設(特別養護老人ホーム) 80床
短期入所生活介護(ショートステイ) 20床
通所介護(デイサービス) 35人
在宅介護支援センター(居宅支援事業)
施 設 概 要
和歌山県の中紀に位置し、JR御坊駅よりバス(日ノ岬パーク行き)潮吹岩、特養ときわ寮前で下車。 県立自然公園煙樹海岸の西端に位置し南は太平洋と美浜海岸が眺望できる高台で三方は緑につつまれた山間にあり、 四季を通じて小鳥の声が聞こえるすばらしい環境にあります。
当施設のご利用、ご見学等に関するお問い合わせにつきましては、下記の連絡先までどうぞお気軽にご連絡ください。
〒644−0045
和歌山県日高郡美浜町大字三尾9番地
TEL: 0738−22−1251
FAX: 0738−24−0291
E-MAIL:tokiwami@dream.ocn.ne.jp
| 主要設備 | |
|---|---|
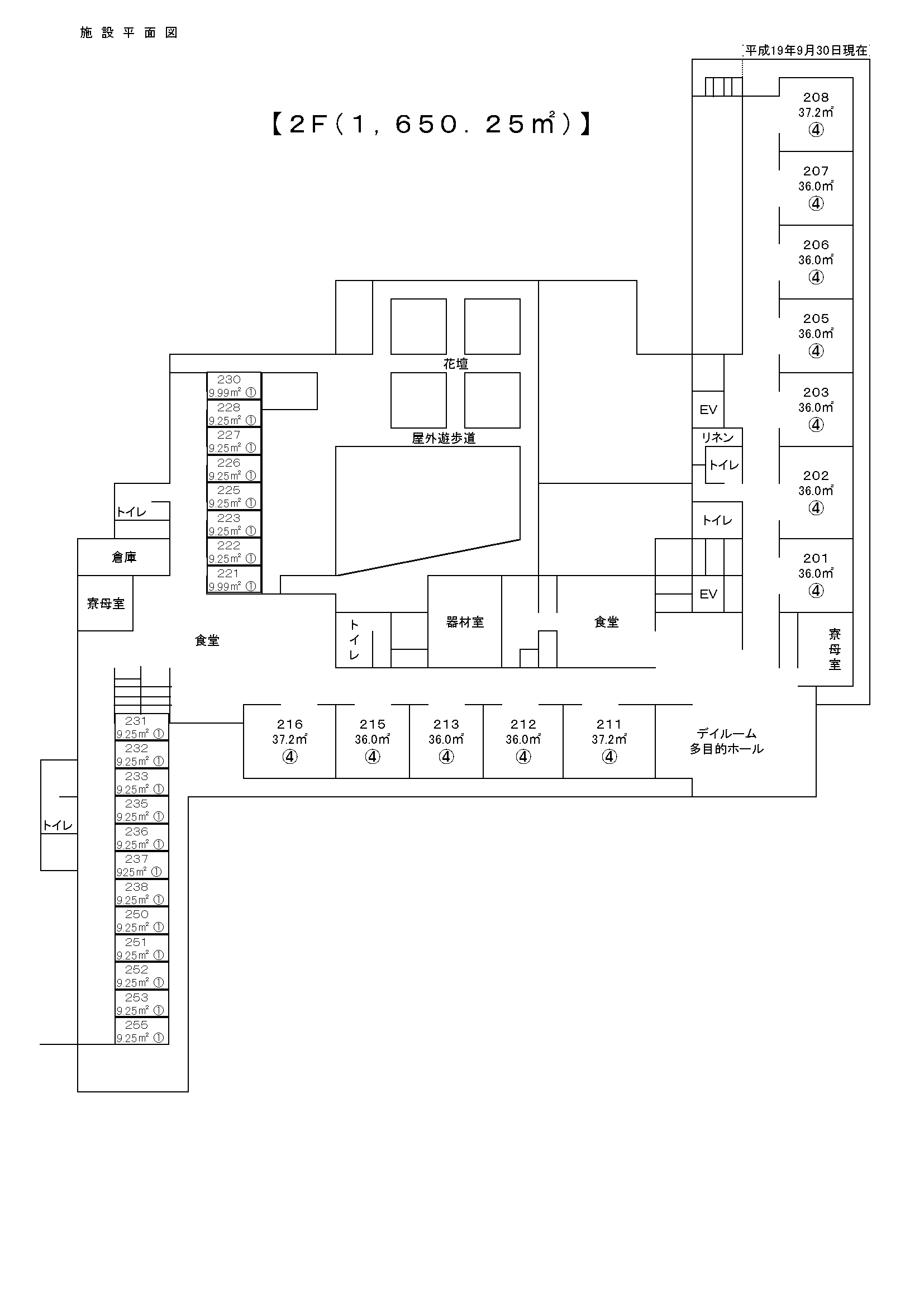
| 居室(4人部屋) | 20室 |
| 個室(1人部屋) | 20室 |
| 食堂兼デイルーム | 3室 |
| 機能\訓練室 ※主な設置機器 | 1室 (2階多目的ホール) ホットパック、滑車運動器、平行棒、マイクロ波治療機 |
| 浴室 | 2室 (一般浴室・特殊浴室) |
| 医務室 | 1室 |
| 人員配置 | |
|---|---|
| 施設長 | 1名 |
| 医師 | 1名 (非常勤) |
| 理学療法士 | 1名 |
| 看護職員 | 5名 (夜間は待機) |
| 生活相談員 | 2名 |
| 介護支援専門員 | 2名 |
| 管理栄養士 | 1名 |
| 栄養士 | 1名 |
| 歯科衛生士 | 1名 |
| 介護職員 | 37名 |
| 調理員 | 8名 |
| 事務員 | 1名 |





